Vous souhaitez engager quelques travaux pour refaire votre cuisine en « face à face ». Pour des salles de 3 à 11 m², l’architecte Nicolas Sallavuard, vous donne quelques tuyaux pour renouveler l’agencement de votre cuisine idéale.
De toute évidence, quand on souhaite refaire sa cuisine, on cherche avant tout la disposition la plus fonctionnelle, c’est-à-dire aérée et sans de perte de volume rangement. Le principe de la cuisine en « face à face » permet d’optimiser votre espace, surtout si vous avez une pièce construite en longueur.
De 3 à 11 m², Nicolas Sallavuard, architecte de l’agence Studio d’Archi, vous donne quelques plans et astuces.
Pour une petite surface de 3,2 m², il y a la possibilité d’installer 4 éléments : évier et le frigo d’un côté, et une plaque de cuisson et un lave-vaisselle de l’autre.
Pour une cuisine de surface de 5,7 m², le linéaire du haut permet la préparation des repas avec frigo et cuisson. Sur le linéaire du bas, évier et lave-vaisselle.
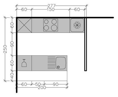
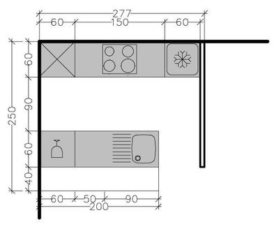
Pour une cuisine de 7,2, il faut privilégier le linéaire pour la préparation et la cuisson, avec un long plan de travail. A droite, le frigo, l’évier et le lave-vaisselle.
Pour une cuisine d’une surface de 11,3 m², regrouper la plupart des équipements (lave-vaisselle, évier, cuisson) avec un plan de travail. En face, le frigo avec les nombreux meubles pour le rangement sont ainsi privilégiés.
